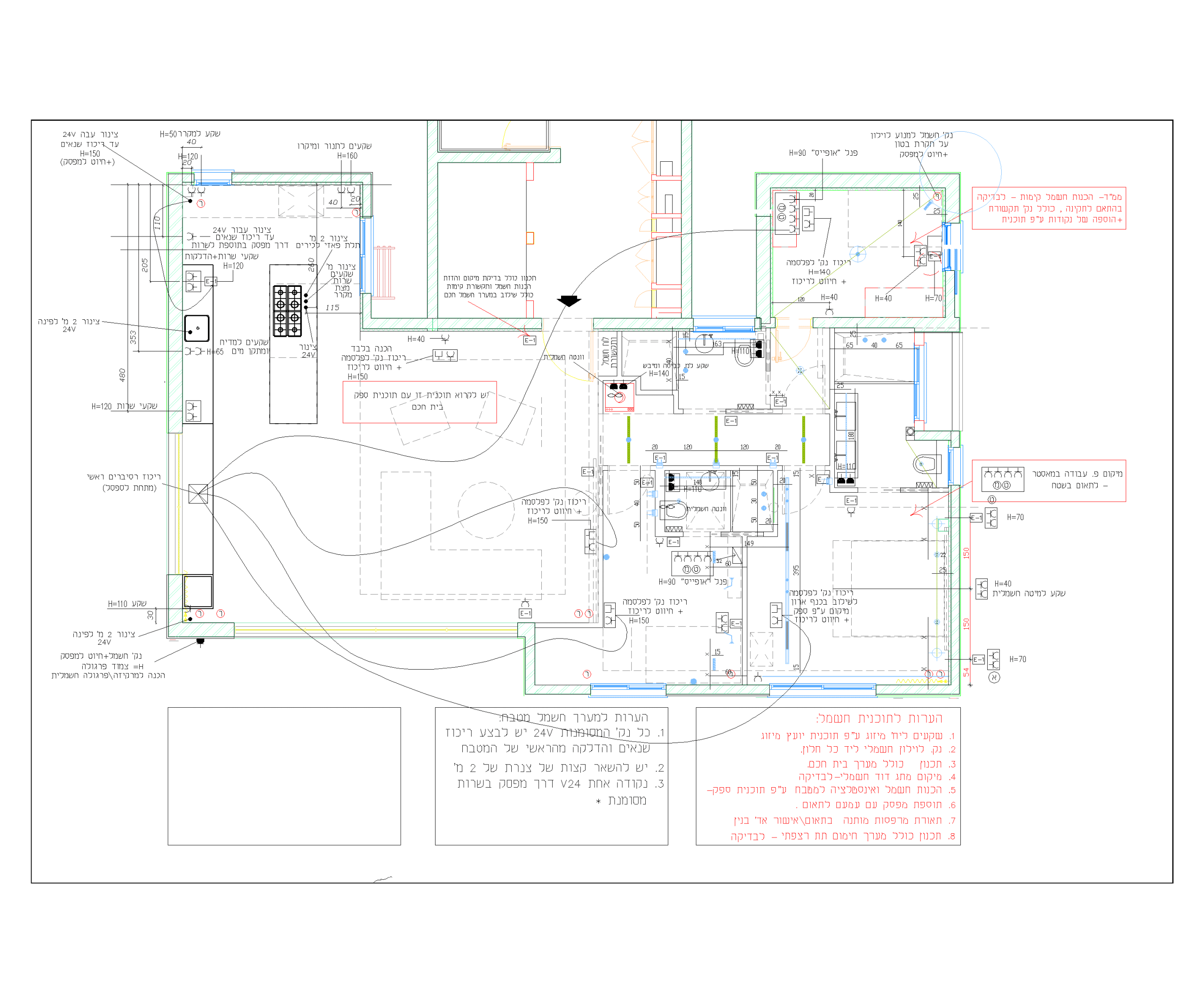
תוכנית בקנה מידה 1:50, כלול תכנון מערכות חשמל, מיקומיים עבור כל נקודות חשמל, מפסקים, שקעים, נקודות מתח נמוך, תקשורת ועוד.
מיקום ארון חשמל ומספור מעגלי תאורה לביצוע קבלן חשמל מורשה.
במידה והלקוח בחר במערכת חשמל חכם רגילה או אלחוטית אנו נוסיף מידע רלוונטי.
המחיר מעל 400 מ"ר הינו בתוספת של 4.5 ש"ח למ"ר.
1. המחירים כוללים מע"מ.
2. המחירים תקפים ל30 יום מיום קבלת הצעת מחיר.
3. הצעת מחיר מרוכזת תועבר לאחר בדיקת בקשה ומידע ע"י מערך שרטוט נכון תוך 2 ימי עבודה.
4. כל תכנון מותנה בקבלת קובץ תוכנית עם מידות, במידה ואין בידכם קובץ, נציע להפיק תוכנית ממוחשבת עבורכם על בסיס ומידות שאתם תעבירו, מחיר תוכנית ממוחשבת ראה מחירון.
5. תכנון שלנו כולל מהדורת תיקונים אחת. במידה ותרצו מהדורות ועדכונים נוספים – עלות כל מהדורה 100 ₪.
6. שרטוטים ישלחו ללקוח 10 ימי עבודה מאישור תשלום ראשון ומיום קבלת כל מידע נדרש מלקוח (כולל כל תשובות \ הבהרות לנושאים שיעלו במהלך תכנון).
במידה ומידע שהועבר ע"י הלקוח חלקי או חסר הדבר עלול לעכב הפקת תוכניות.
7. במידה ודחוף, נשמח לזרז תוכנית תשתית ותכנון מקומי (למעט מטבח), הפקת תוכנית בתוספת תשלום של 75 ₪ לתוכנית.
8. שרטוטים יועברו ללקוח בפורמט PDF.
9. אפשרות לקבלת קבצי שרטוט (פורמט DWG) בתוספת 35 ₪.
10. שרטוטים לא ישמשו להפקת אישורים מול רשויות.
11. ביצוע שרטוטים עם שינוים הנדסיים מותנה בצירוף תוכנית חתומה ע"י מהנדס בנין – באחריות לקוח.
במסגרת שיפוץ או בנייה של בית, למערכת החשמל יש מקום של כבוד. בכל סוג של בנייה אנחנו זקוקים לתשתית חשמל, וההכנה שלה היא דבר שמתחיל כבר בשלבים הראשונים של הבנייה ומלווה אותנו לאורך כל התהליך. בניגוד לחלקים אחרים של הבנייה שבהם הטעם שלכם הוא זה שקובע, כאשר אנחנו מדברים על תוכנית חשמל חשוב לזכור שיש לה גם צד בטיחותי חשוב. לאור זאת, יש אנשי מקצוע שחייבים להיות מעורבים בתהליך ההכנה שלה, ואתם צריכים לתקשר איתם.
בתחום החשמל, מי שאחראי על הכנת תוכנית חשמל הטכנית הוא מהנדס חשמל. המהנדס צריך להחזיק ברישיון מתאים, והוא למעשה אמון על כך שהמערכת תהיה בטיחותית לשימוש. במהלך הבנייה סביר להניח שנתקלתם במצב שבו לא הצלחתם להסביר את הרצון שלכם לאנשי המקצוע שאחראים על הבנייה. בעבודה על תשתית חשמל המצב הזה הוא שכיח ביותר, ולכן חשוב שתהיה לכם תוכנית חשמל ברורה שתבטא את כל הרצונות והצרכים שלכם כבסיס לתוכנית של מהנדס החשמל.
תוכנית חשמל היא למעשה שרטוט מפורט שמתאר את מערכת החשמל של הבית על כל הפרטים שבה. בשרטוט יופיעו כל השקעים, מפסקים, ריכוזים הכנות למערכות נלוות (כדוגמת מערך מיזוג) נקודות חשמל לראוטר, סייב אופטי ועוד, תוכנית החשמל לרוב מורכבת ולא ברורה לאדם לא מקצועי , יתכן ותתקשו להבין מה בדיוק כתוב בשרטוט הזה, אולם המטרה שלו היא בעיקר להנחות את אנשי המקצוע.
קנה המידה של התוכנית הוא 1:50, והיא מאפשרת לאנשי המקצוע להבין היטב איך מערכת החשמל אמורה להיראות. לאור החשיבות הרבה שיש לתוכנית, יש לוודא שקבלן החשמל הינו חשמלאי מוסמך, ולהנחות אותו שבכל מקרה של חוסר ודאות יש עליו לוודא שכול שינוי או עדכון יעודכן על גבי תוכנית ויאושר על ידי מהנדס חשמל מורשה, כדי לוודא שמדובר בשינוי שחוקי ונכון לבצע.
יש לוודא שקבלן חשמל הינו חשמלאי מוסמך, ושחוזה עבודה מולו כולל סעיף ביטוח מקצועי שלו ושל עבדתיו
כאמור, תוכנית חשמל הינה טכנית ומורכבת ובו בזמן צריכה לשקף באופן מדויק את רצונתיכם.
לאור זאת, חשוב לציין שהקפדה על תוכנית חשמל מסודרת כבר מההתחלה תעזור לכם להימנע ממצב שבו בסיום הבנייה מתגלות בעיות בנוגע למערכת החשמל. בעיות כאלו לא תמיד ניתנות לתיקון בקלות ועלולות ליקר ועכב את סיום הפרויקט.
החשיבות של תוכנית חשמל צריכה להיות ברורה לכל מי שניגש לפרויקט בנייה. כל מה שנותר לכם זה רק לפנות למשרד שיפיק לכם תוכנית כזו.
WhatsApp us